ST LEONARDS RE-IMAGINED
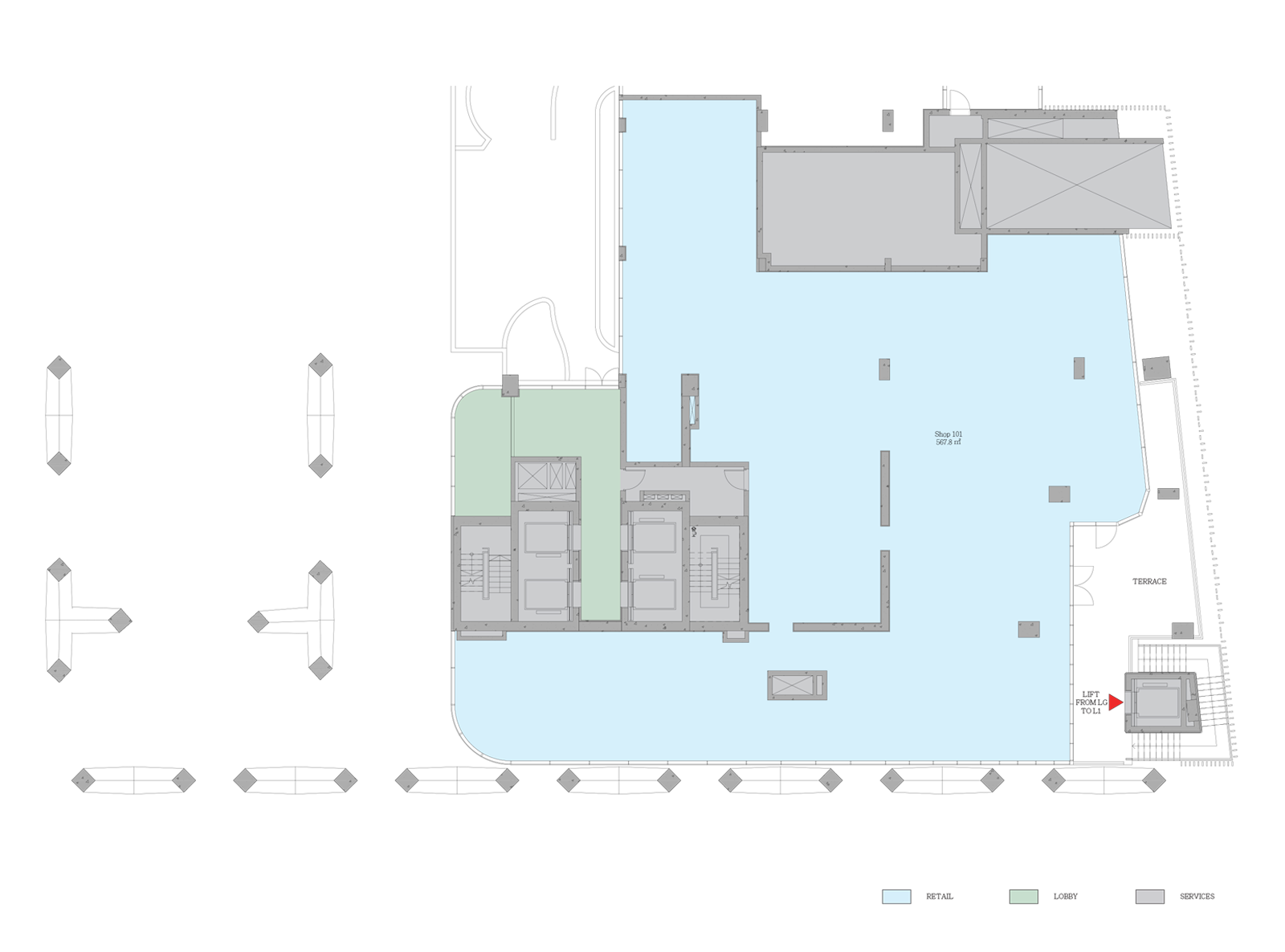
Upon completion this exciting new mixed use development is scheduled to come to life in late 2022, comprising of approximately 637 luxury apartments, 16,738m2 A-Grade office tower, 8,000m2 approximately of retail across three levels anchored by Coles supermarket, public library and 30 specialty shops with an open air plaza at ground level boasting a dining precinct comprising an enticing mix of cafes, food & beverage premises with alfresco dining and its laneway eat street.
This exciting new cosmopolitan retail precinct situated along Pacific Highway in the heart of St Leonards, approximately 6km North of the Sydney CBD and conveniently opposite St Leonards Train Station will be activated both day and night, enticing for people near and far with 374 undercover customers parking spaces.